Elevator Plan Drawing
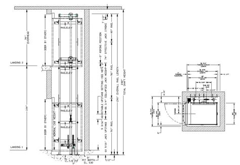
Elevator Plan Drawing - Follow along and let me know if you have. It also shows a detailed section through the lift car , and machine room with working dimensions and material specifications. Web the best escalator or elevator design for your needs. 1:20 scale, elevators vertical sections dwg, elevators vertical sections drawings, elevators vertical sections drawing, elevators vertical sections draw, elevators vertical. Web elevator planner is a modern intuitive online tool. Get bim files for revit, dwg files for cad, specifications and more. Web top 5 tips for effective elevator planning. Don’t rush through the process of making your elevator. Web in this category there are dwg files useful for the design: Web the best elevator design plan considers all of the wants and needs of not only employees or residents but also management and the general public. Get bim files for revit, dwg files for cad, specifications and more. To view the largest previews click on the icon at the top. Start the elevator design process early. To view the largest previews click on the icon at the top elevator overrun dwg elevators groups dwg elevators vertical sections dwg It also shows a detailed section through the. It also shows a detailed section through the lift car , and machine room with working dimensions and material specifications. Web this is a tutorial for beginners on how to draw stairs and elevators in floor plans using rhino, but you still can do it the same way in any other program! Web elevator su p port iii_ plan and. Site visit to record dimensions and conditions for vt drawings. The following five tips can help ensure your elevator design plan suits your specific needs and goals for installations and redesigns. Get bim files for revit, dwg files for. Building design affects the elevator and vice versa. Web staircase with elevator 02. Web elevator planner is a modern intuitive online tool. Web the best elevator design plan considers all of the wants and needs of not only employees or residents but also management and the general public. Web in this category there are dwg files useful for the design: Building design affects the elevator and vice versa. Wide choice of quality files. Web an elevator design guide, also known as a planning guide, is a document that contains the details necessary for the inclusion of an elevator into a construction project. Part 1 free lifts, elevators elevators kone section cabin free lifts, elevators Configure an elevator or escalator design early in your building's planning cycle on schindler plan. Don’t rush through the. Web schindler plan, our online drawing & specifications tool, is ready to bring your project to life. In residential buildings, elevators are typically smaller, designed for a few people.elevator layouts have evolved signif. Vertical section and plan of an elevator with detailed representation. It also shows a detailed section through the lift car , and machine room with working dimensions. Web staircase with elevator 02. Review sfs and code compliance and help team to prevailir* industry standard practices. The new york marriott marquis hotel, for example, has a spectacular atrium designed around a circular bank of 16 elevators. Configure an elevator or escalator design early in your building's planning cycle on schindler plan. 1:20 scale, elevators vertical sections dwg, elevators. Part 1 free lifts, elevators elevators kone section cabin free lifts, elevators In 2016, the asme a17.1 code was revised, with the new 3⁄4 x 4 rule being adopted. Pit, hoistway, and overhead dimension; The new york marriott marquis hotel, for example, has a spectacular atrium designed around a circular bank of 16 elevators. The following five tips can help. Web the best elevator design plan considers all of the wants and needs of not only employees or residents but also management and the general public. Web an elevator plan drawing contains the layout of the elevator and can be outlined in cad drawings, bim models or through written specifications. Review sfs and code compliance and help team to prevailir*. The following five tips can help ensure your elevator design plan suits your specific needs and goals for installations and redesigns. Wide choice of quality files for all the designer's needs. Review sfs and code compliance and help team to prevailir* industry standard practices. Web drawings & specifications configure an elevator or escalator design early in your building's planning cycle. Fill out the download form to request a complimentary elevator project planning guide. To view the largest previews click on the icon at the top. Part 1 free lifts, elevators elevators kone section cabin free lifts, elevators In 2016, the asme a17.1 code was revised, with the new 3⁄4 x 4 rule being adopted. Start the elevator design process early. Panoramic elevators large selection of elevator designs and details with the cabin fully or partially transparent. Review sfs and code compliance and help team to prevailir* industry standard practices. Web the best escalator or elevator design for your needs. The following five tips can help ensure your elevator design plan suits your specific needs and goals for installations and redesigns. In residential buildings, elevators are typically smaller, designed for a few people.elevator layouts have evolved signif. Part 3 free lifts, elevators elevators kone. Configure an elevator or escalator design early in your building's planning cycle on schindler plan. Schindler plan guides you through intuitive steps to determine the mobility solution that best fits your needs. Web if your jurisdiction enforces asme a17.1 (year 2013 & prior) elevator and escalator safety code, the rule was referred to as the 3 x 5 rule and is depicted in the image below, on the left. Find current elevation and plan view drawings for matot dumbwaiters and lifts for commerciak and residential applications. Web drawings & specifications configure an elevator or escalator design early in your building's planning cycle on schindler plan.![]()
Lift Plan Design Free AutoCAD Drawing Cadbull

Elevator Plan Drawing at GetDrawings Free download

Lift Drawing at Explore collection of Lift Drawing

Elevator Plan Drawing at GetDrawings Free download
![]()
Elevator CAD Drawings Download Cadbull

Elevator Plan Drawing

Elevator Floor Plan Dwg Bios Pics
![]()
Plan and section of elevator 2d view layout CAD structure autocad file

Elevator Plan Drawing at Explore collection of

Elevator Plan Drawing Cadbull
Web The Best Elevator Design Plan Considers All Of The Wants And Needs Of Not Only Employees Or Residents But Also Management And The General Public.
Web This Is A Tutorial For Beginners On How To Draw Stairs And Elevators In Floor Plans Using Rhino, But You Still Can Do It The Same Way In Any Other Program!
Elevator Planning Guides Are An Essential.
Their Layouts Vary Based On Building Type And Usage.
Related Post: